Villa Schöningen / Potsdam
Entwicklung eines Gesamtkonzeptes
mit Lützow 7 Cornelia Müller Jan Wehberg LA / Berlin
Realisierungswettbewerb 2007
![]()
![]()
Entwicklung eines Gesamtkonzeptes
mit Lützow 7 Cornelia Müller Jan Wehberg LA / Berlin
Realisierungswettbewerb 2007










Vision des Auslobers: Potsdam mit der Villa Schöningen von Ludwig Persius nicht nur ein historisches Gebäude zurückzugeben, sondern an diesem exponiertesten Eingang der Stadt einen öffentlichen Ort und einen Ort der Kultur und der Kunst zu erschaffen.
Der Entwurf setzt diese Vision um, indem er der Kunst nicht nur die Villa zuordnet, sondern einen Kunstpavillon vorsieht, in dem sich zeitgenössische Kunst frei entfalten und nach außen wirken kann. Dieser Kunstpavillon bildet als Dependance einen Gegenpol zur Villa Schöningen. Zwischen diesen beiden Gebäuden spannt sich ein Skulpturengarten auf, so dass das gesamte Ensemble einbezogen ist und sich zu einem 'Gesamtkunstwerk' entwickeln kann. Geschichte und Gegenwart, alte Kunst und neue Kunst, Denkmal und zeitgenössische Architektur treten in einen vielfältigen Dialog ein.
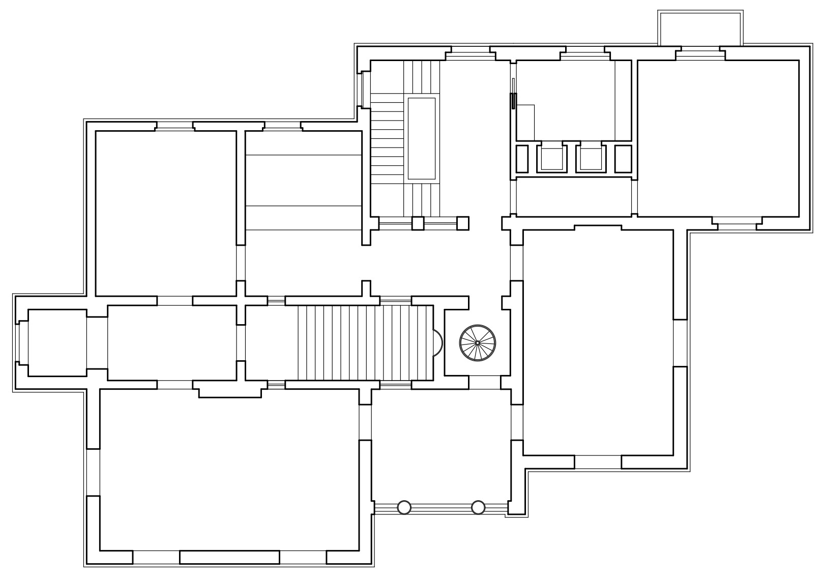
Villa
Der Entwurf für die Restaurierung und den Umbau für Galerie und Gastronomie bewegt sich vollständig innerhalb der gewachsenen Struktur des Gebäudes. Er respektiert dabei alle Bauphasen. Der Umbau von 1922 hat dem Haus seine ursprüngliche strukturelle Klarheit genommen. Der Entwurf setzt hier an, korrigiert bestimmte Veränderungen des Wallich-Umbaues und erzeugt so die ursprüngliche strukturelle Klarheit innerhalb des 1922 erweiterten Gebäudes. Die Wendeltreppe zum Turm wird wiederhergestellt, um dieses prägende Zeichen auch im Inneren wieder erfahrbar zu machen.
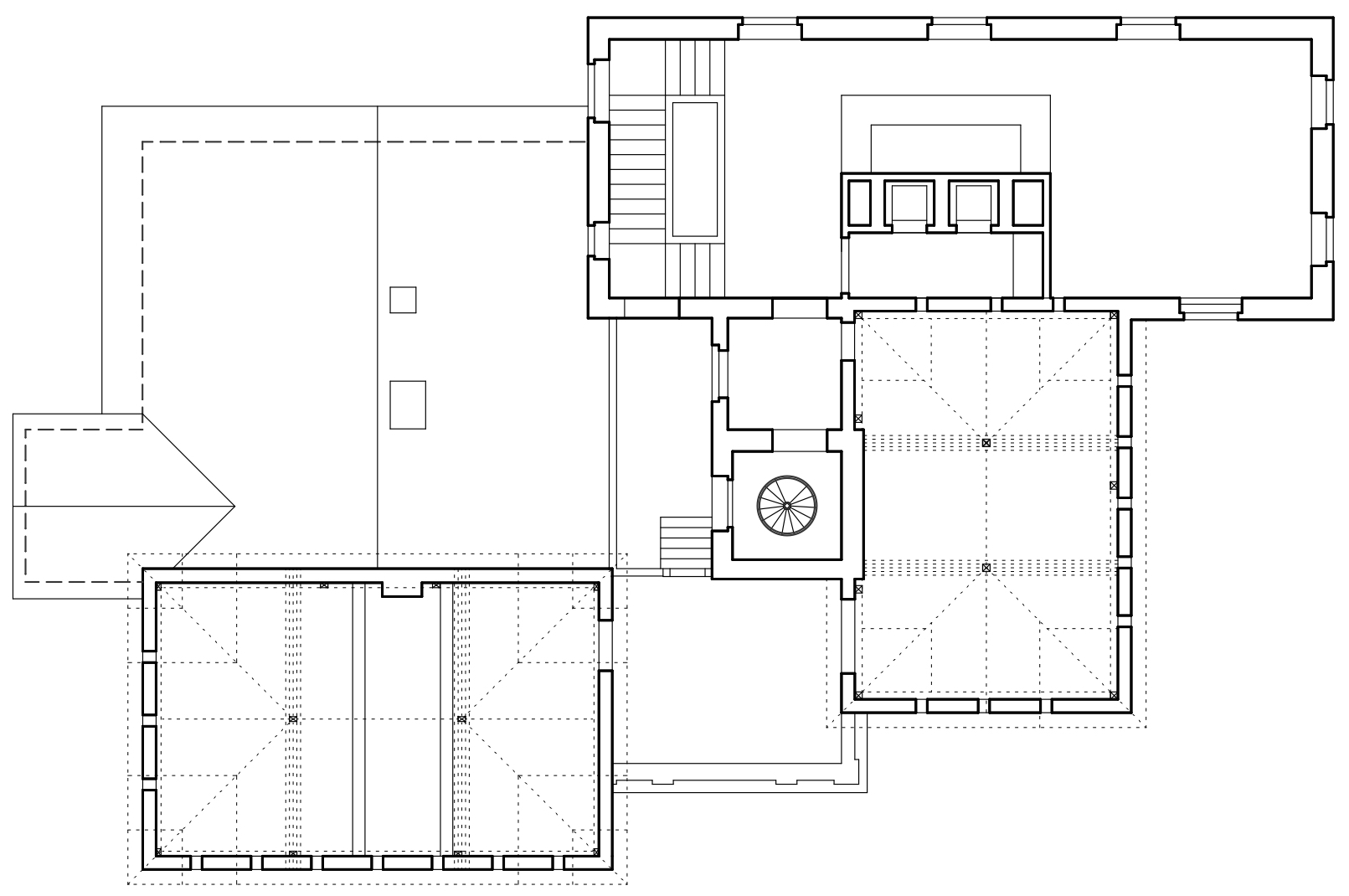
Kunstpavillon
Der Kunstpavillon ist ein kompakter allseitig verglaster Kubus, in dessen Oberflächen sich die umliegenden Bäume widerspiegeln. Im Scheibenzwischenraum befindet sich ein feines Metallgewebe, das zum einen das Licht und die Sonneneinstrahlung filtert, das zum anderen je nach Sonnenstand und Beleuchtung des Innenraumes Offenheit des Körpers und Einblicke variiert.
Wohnen
Die ergänzende Wohnbebauung wird nicht als Villa gestaltet, diese Rolle bleibt der Villa Schöningen vorbehalten. Das Wohngebäude befindet sich im Hintergrund des Grundstückes, eingebettet in einen Obstbaumhain. Der Entwurf sieht einen flachen, langgestreckten Baukörper vor mit einer geschichteten und vielschichtigen Erscheinung. Seine Decken kragen aus und bilden zum Garten und zu den Seiten hin großzügige Loggin. Der Korpus des Hauses besteht aus einer dunklen hölzernen Bekleidung. Regelmäßig angeordnete, große raumhohe Schiebetüren sind körperhaft vor den hölzernen Korpus gesetzt, treten mit ihrem Schlagschatten hervor. In ihnen spiegeln sich der Garten und die ihn prägenden Bäume. Der gewohnte Eindruck einer Fassade kehrt sich um - statt einer Wand mit vertieften Öffnungen entsteht der Eindruck von tragenden gläsernen Elementen. Durch das Öffnen der Schiebetüren ergibt sich eine dezente Bewegung und Schichtung der Flächen.
Garten
Der Entwurf des Gartens gliedert sich in den der Villa zugeordneten formalen Skulpturengarten und den mit Obstbäumen bestandenen Wiesengrund, strukturiert in Rasenflächen und Mähwiesen. Der Skulpturengarten greift als Boskett-Garten Gliederung und Elemente von historischen Gärten und von Abbildungen zur Villa Schöningen auf, in- terpretiert sie ohne zu rekonstruieren. Der Kunstpavillon übernimmt die Aufgabe der ehemaligen Excedra als axialer Kontrapunkt zur Villa.
Ein Rhododenron-Cluster fasst körperhaft den Gartenraum ein und erzeugt eine Distanz zu dem durch hohe Hecken eingefassten Parkplatz.