Fritz-Rumpf-Straße / Potsdam
Neubau eines Wohnhauses
Fertigstellung 2016
![]()
![]()
![]()
![]()
Neubau eines Wohnhauses
Fertigstellung 2016





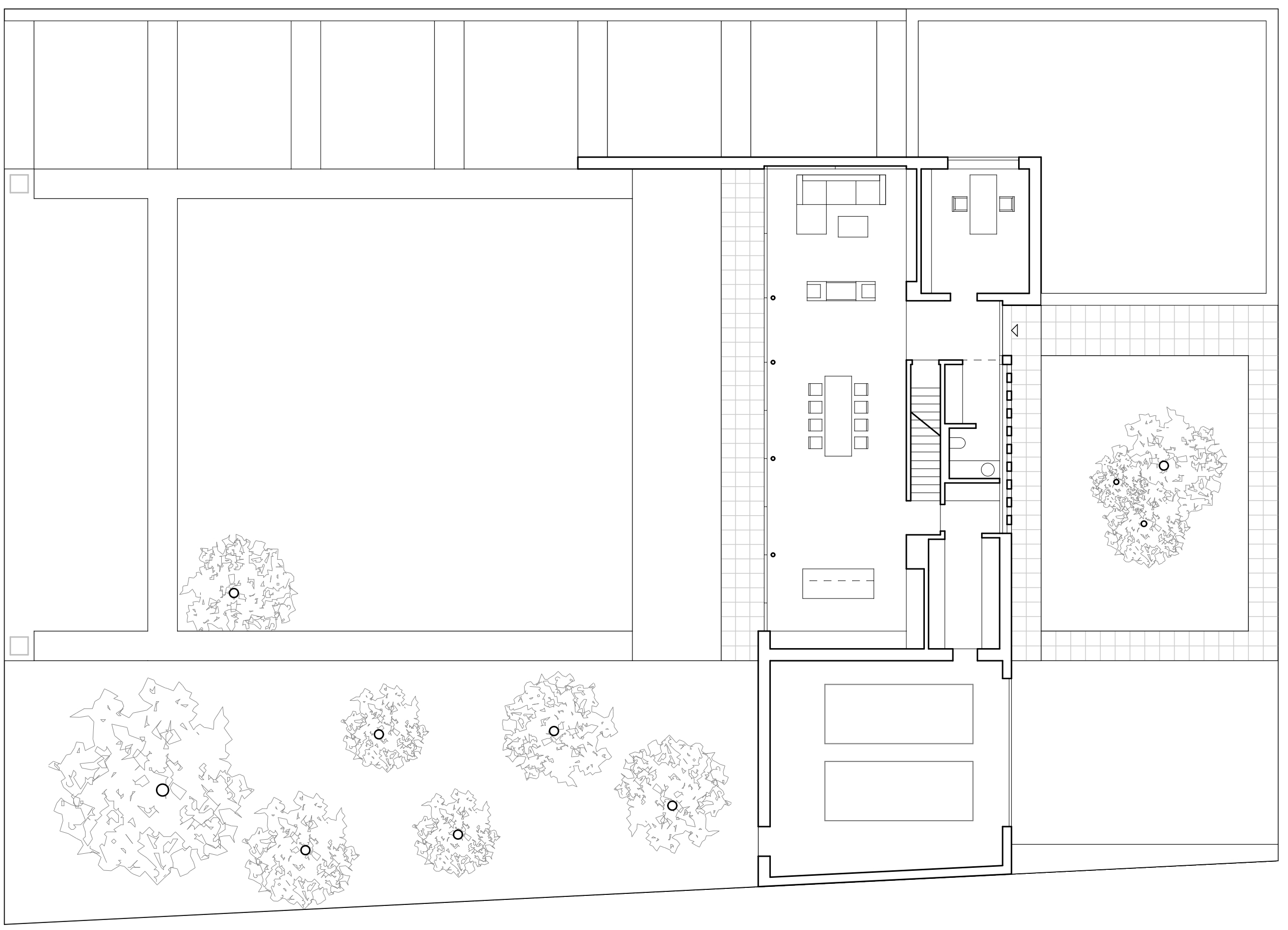
Das Konzept sieht vor, den Baukörper nicht auf der vorderen Baugrenze zu errichten, sondern das Haus auf die Flucht des letzten Gebäudes zurückzusetzen. Zwischen dem Wohnhaus und dem Privatweg entsteht so ein Vor-Garten bzw. ein kleiner Vor-Platz. Wege fassen eine erhöhte, durch einen Sockel eingefasste Pflanzfläche ein. Es entsteht eine großzügige Adresse und Eingangssituation. Die erhöhten Pflanzflächen ermöglichen es, auf eine Einfriedung vor dem Haus zu verzichten.
Der Baukörper wird durch ein Auskragen des OG auf beiden Längsseiten plastisch bearbeitet und gestaltet so die Ecksituation des Grundstücks und des Weges. Die zurückgesetzten Wandflächen im EG incl. der den Baukörper verlängernden Garage erhalten eine Bekleidung aus hellen Wasserstrich-Riemchen.
Das auf der Eingangsseite verschlossene Wohnhaus öffnet sich konsequent nach SW in den abgeschirmten privaten Garten. Die Wohnräume sind vollständig verglast, geschützt durch das Auskragen des Baukörpers im OG. Die Öffnungen der einzelnen Zimmer im OG werden zu horizontalen Fensterbändern zusammengefasst.
Im EG befinden sich der zusammenhängende Wohnbereich mit offener Küche sowie ein Gästezimmer. Das OG mit seiner durch ein Oberlicht schön belichteten Diele enthält die privaten Zimmer und ein Arbeitszimmer.
Eine nachhaltige ökologische Wärmeversorgung wird durch Geothermie gewährleistet.