Leonardo-da-Vinci-Straße / Potsdam
Neubau eines Wohnhauses
Fertigstellung 2014
Neubau eines Wohnhauses
Fertigstellung 2014










Das Grundstück befindet sich in einem Neubaugebiet - dennoch gilt die historisierende Gestaltungssatzung des Bebauungsplanes Berliner Vorstadt. Eine zeitgemäße Architektur kann nur realisiert werden, wenn der Bauherr einen Wettbewerb auslobt oder den Entwurf dem Urteil einer Fachjury unterzieht. Entsprechend wurde der Entwurf dem Gestaltungsrat der Stadt Potsdam vorgestellt, der ihm zustimmte.
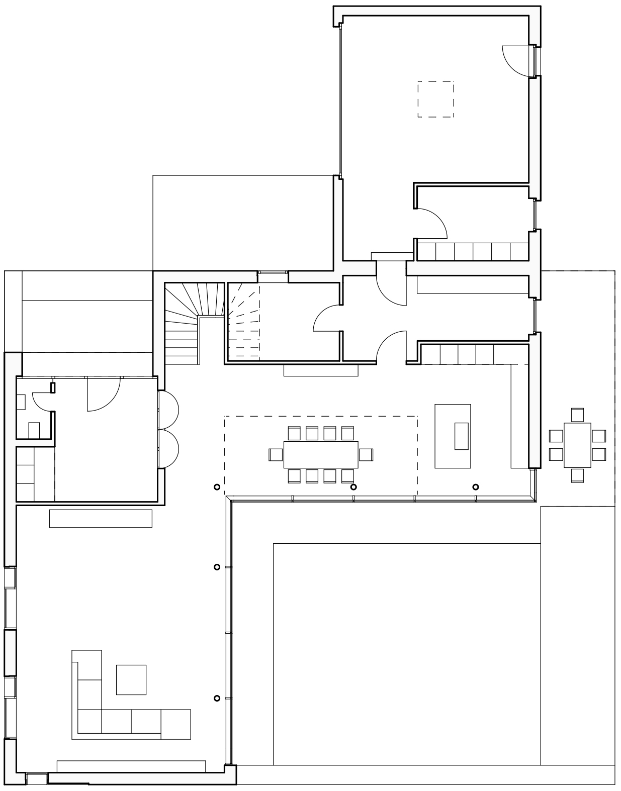
Das Konzept sieht einen aus Flügeln zusammengefügten Baukörper vor, der einen Winkel bildet entlang der Straße und der nördlichen Grenze. Die beiden Schenkel umfassen einen sich nach Osten und Süden öffnenden Gartenraum und schirmen diesen privaten Bereich von dem nahen Nachbargebäude ab. Der Kontur des Baufeldes folgend wird zum Platz hin eine Innenecke ausgebildet - hier befindet sich der Eingang.
Der Baukörper wird in seiner Höhe gestaffelt. Er erhält zum Platz hin einen turmartigen kompakten kubischen Aufsatz, der präzise die Gebäudeecke formuliert. Die weitere Dachfläche ist als Dachterrasse ausgebildet - durch eine Wandscheibe gefasst und durch umlaufende Balken gerahmt.
Während die zum Garten hin ausgerichteten Fassaden vollständig aufgelöst werden, sieht der Entwurf zur Straße und nach Süden hin eine Lochfassade vor. Die raumhohen Öffnungen bestehen aus fassadenbündigen, bildhaft spiegelnden Festverglasungen und aus schmalen, zurückgesetzten geschlossenen Öffnungsflügeln.
Der gegliederte Baukörper entwickelt sich dynamisch zum Platz hin und erzeugt mit seiner dreigeschossigen Eingangsfassade eine markante Eckbetonung. Mit einer zeitgemäßen Architektur wird so den Zielen des postmodernen Bebauungsplans entsprochen.