Langhansstraße / Potsdam
Konzept einer Erweiterung
Entwurf 2006
![]()
![]()
Konzept einer Erweiterung
Entwurf 2006




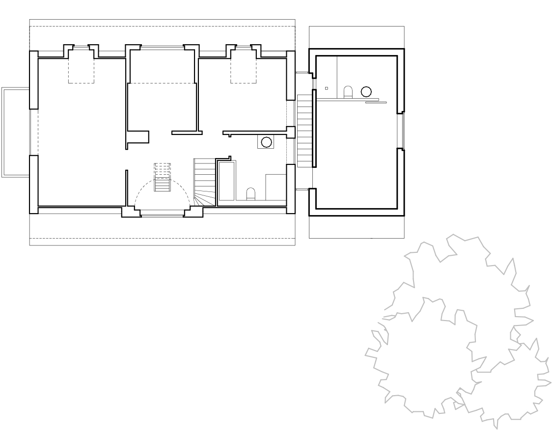
Ein denkmalgeschütztes Wohnhaus in einem Ensemble gleicher Typenhäuser mit Klinkersockel, hellem Putz, Satteldach mit Fledermausgauben. Es ist die kurze Variante mit entsprechender Enge vor allem in seinem Obergeschoss.
Der Entwurf sieht vor, den Baukörper zu verlängern auf das Maß des im Ensemble vorhandenen 'langen Typs'.
Die Erweiterung wird dabei als eigenständiger Körper gestaltet: konsequent abstrahiert, Fassaden und auch Dachflächen mit Werksteinplatten bekleidet, abgelöst durch eine schmale gläserne Fuge, in der die Treppe verläuft. Das bestehende Haus wird nicht beeinträchtigt, nicht berührt. Haus und Anbau bilden eine harmonische Einheit, bei der jeder Teil seine Autonomie bewahrt.