Jägerstraße 5 / Potsdam
Denkmalgerechte Sanierung, Umbau und Errichtung eines Hofgebäude
in Realisierung
![]()
![]()
![]()
![]()
![]()
![]()
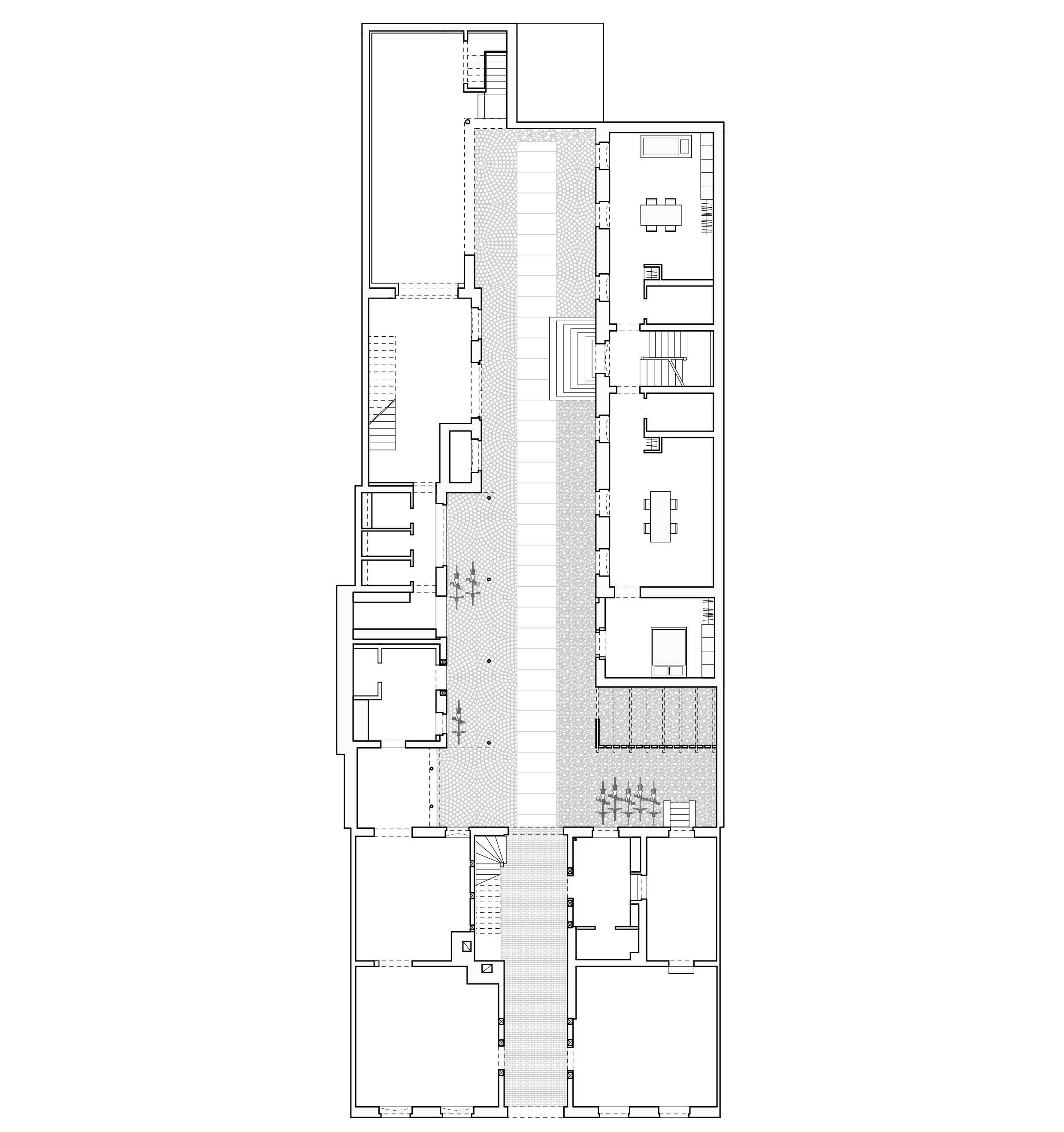
Die Bebauung auf dem Grundstück Jägerstraße 5 besteht aus mehreren Gebäuden aus unterschiedlichen Epochen. Das barocke Vorderhaus ist ein typisches Bürgerhaus mit fünf Achsen, mittiger Durchfahrt und Giebelstube. Die Fachwerkkonstruktion ist mit Ausnahme der Fassaden im EG vollständig erhalten, was man dem Gebäude außen nicht ansieht, da die Fassaden im 19.Jhdt. verputzt wurden.Denkmalgerechte Sanierung, Umbau und Errichtung eines Hofgebäude
in Realisierung






Der rechte Seitenflügel stammt aus der zweiten Hälfte des 19. Jhdts. Er befindet sich in einem maroden Zustand, ist z.T. schon eingestürzt und innen vollständig ausgesteift. Die linken Seitenflügel entstanden nacheinander. Ältester Baukörper ist der vordere Seitenflügel aus dem frühen 19. Jhdt., der sich anschließende Mittelbau wurde Ende des 19. Jhdts. errichtet als Stall mit einer dahinter befindlichen offenen Remise.
Die Gebäude wurden von 1892 bis vor kurzem von der Familie Lehle für ihre Bauschlosserei genutzt, die bis in jüngere Zeit Anbauten und Umbauten realisierte.
Die Planung sieht vor die einzelnen Gebäude denkmalgerecht zu restaurieren. Die gravierende Schädigung erfordert eine aufwändige und tiefgreifende Sanierung und eine behutsame schrittweise Vorgehensweise.
Es werden zwei Gebäude ergänzt. Ein verglaster 'Zwischenbau' erweitert die Gewerbeeinheit des Vorderhauses in den linken Seitenflügel, öffnet ihn, bildet ein Schaufenster und einen Eingang. Am Ende des Hofes wird ein zweigeschossiger Neubau eingefügt, der als Winkel den Hof abschließt. Zwischenbau und Neubau rahmen mit ihrer erkennbar heutigen Gestaltung und großflächigen Verglasung die historischen Seitenflügel ein, stellen sie heraus.
Der schmale Hof wird mit unterschiedlichem Pflastermaterial und einem Streifen aus großformatigen Platten gestaltet unter Verwendung von gesichertem Lesesteinpflaster.