︎
PHILIPP JAMME
Mark
Info
Projekte
Kontakt
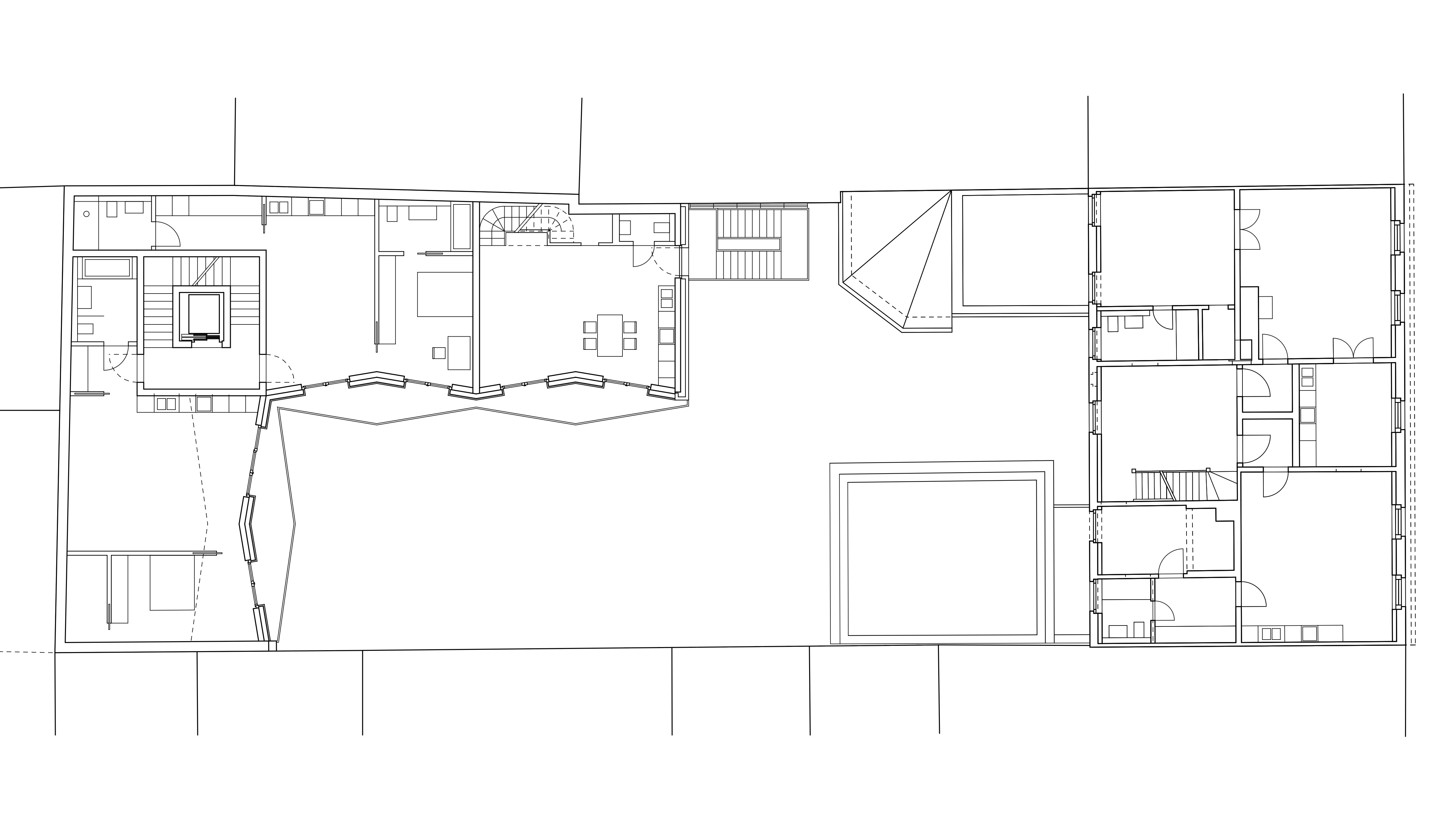
Jägerstraße 20 / Potsdam
Denkmalgerechte Sanierung und Neubau eines Hofgebäudes
in Planung - Baubeginn 2022