Höhenstraße / Potsdam
Neubau eines Wohnhauses
Fertigstellung 2015
Neubau eines Wohnhauses
Fertigstellung 2015








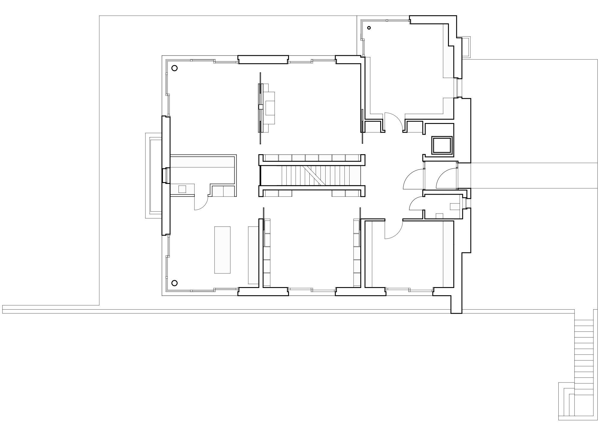
Das Wohnhaus ist konsequent aus dieser Situation entwickelt. Eine zentrale einläufige Treppe mit verglasten Stufen zwischen beidseitigen Wandscheiben bildet das Zentrum des Hauses, um das herum die Räume angeordnet sind - die Wohnräume als ineinander übergehende Raumfolge, die einzelnen Zimmer abgehend von einer Diele, ein Studio als oberer Abschluss.
Auf drei Seiten öffnen sich die Räume in die Landschaft. Dieser Außenbezug wird noch verstärkt durch die auf drei Seiten auskragenden Decken, die umlaufende Terrassen bilden, auf die man aus jedem Raum heraustreten kann. Vor- und Rücksprünge der Fassaden gestalten dabei differenzierte Außenräume - windgeschützte Sitzplätze, private Terrassen, Umgänge sowie offene große Terrassenflächen. Die Architektur ermöglicht ein intensives Leben an diesem schönen Ort - mit dem Lauf der Sonne, mit den vielfältigen Stimmungen und Außenbezügen.
Eine nachhaltige ökologische Wärmeversorgung erfolgt durch Geothermie sowie durch den Einsatz eines BHKW.