Im Dol / Berlin
Sanierung / Umbau / Dachausbau
mit Lützow 7 Cornelia Müller Jan Wehberg LA / Berlin
Fertigstellung 2004
Sanierung / Umbau / Dachausbau
mit Lützow 7 Cornelia Müller Jan Wehberg LA / Berlin
Fertigstellung 2004



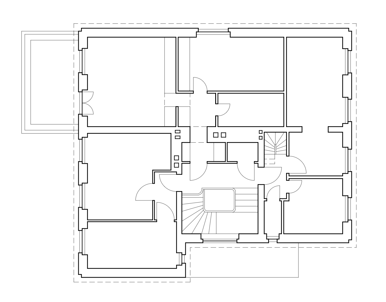
OG Bestand

OG Konzept

DG Konzept


Ein düsteres, strenges, eingewachsenes Haus, dunkle Wohnräume mit fehlenden Verbindungen, ein verbautes Obergeschoss, ein unzugänglicher Dachboden um eine gewaltige Kaminanlage herum.
Das Haus erhält einen lichten Verputz, der den Klinkersockel und die Werksteinelemente zur Geltung kommen lässt. Der in den 50er Jahren verschlossene Anbau wird als Loggia geöffnet, das Hochparterre wird mit einer zusätzlichen Fenstertür und Freitreppe mit dem Garten verbunden. Filigrane gläserne Gauben durchschneiden das Walmdach und belichten ein großes Studio.
Das labyrintische Obergeschoss wird neu strukturiert. Die Halle mit schöner Eichentreppe wird vergrößert, Räume werden zusammengefasst und zu neuen Raumfolgen verbunden. Eine neue Treppe führt zentral um den Schornsteinkern herum, so dass man den Studio-Raum in der Mitte betritt. Die Allseitigkeit dieses Raumes wird auch durch ein kl. Bad nicht unterbrochen, das nur durch eine mattierte Verglasung abgeteilt wird.
Das Farb- und Materialkonzept verwandelt das Haus auch in seinen Innenräumen und verleiht ihm einen lichten und zeitlosen Charakter.