Fritz Rumpf Straße / Potsdam
Neubau eines Wohnhauses
Vorentwurf 2016
![]()
![]()
![]()
![]()
![]()
![]()
Neubau eines Wohnhauses
Vorentwurf 2016






Ein weiterer Entwurf in dem Neubaugebiet in der Berliner Vorstadt - in zweiter Reihe, umgeben von unterschiedlich gestalteten Wohnhäusern, insofern ein Solitär.
Der Baukörper ist Nord-Süd ausgerichtet, er steht quer auf dem Grundstück. Seine Innenräume blicken auf diese Weise in die Tiefe des unbebaubaren grünen Binnenraumes des Areales, der den eigenen Garten räumlich erweitert.
Das turmartig kompakt erscheinende Gebäude besitzt eine klare innere Struktur: die Wohnräume und Zimmer sind nach Süden zum Garten hin ausgerichtet. Die Nebenräume und die Diele mit einer einläufigen Treppe befinden sich in einer schmaleren, nach Norden hin ausgerichteten Zone.
Man betritt das Wohnhaus auf der östlichen Schmalseite und gelangt in eine langgestreckte Diele. Diese erweitert sich räumlich durch die einläufige Treppe und das von oben belichtete Treppenauge. Aus der nach Süden großzügig geöffneten Wohnhalle dringt helles Tageslicht bis in die Diele ein. Der Durchblick vom Eingang endet in einem von Norden und Süden zu jeder Tageszeit gut belichteten Wohnbereich.
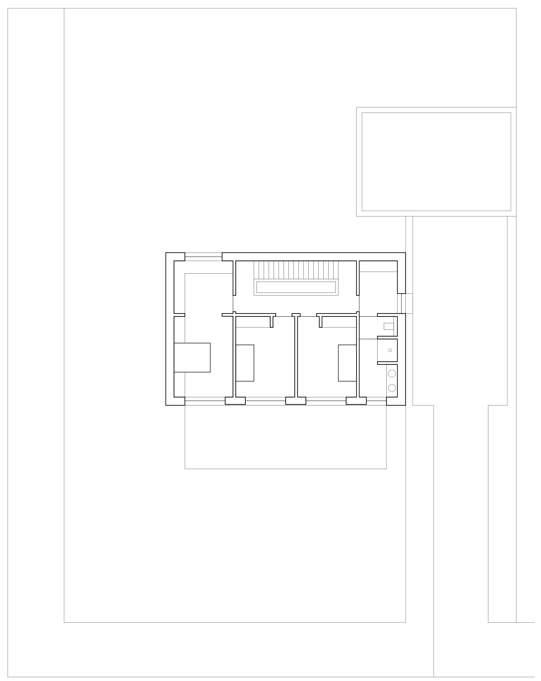
Das OG enthält eine flexible Folge von einzelnen Zimmern: neben zwei Kinderzimmern ein kombiniertes Arbeits- und Gästezimmer sowie Bad und Hauswirtschaftsraum.
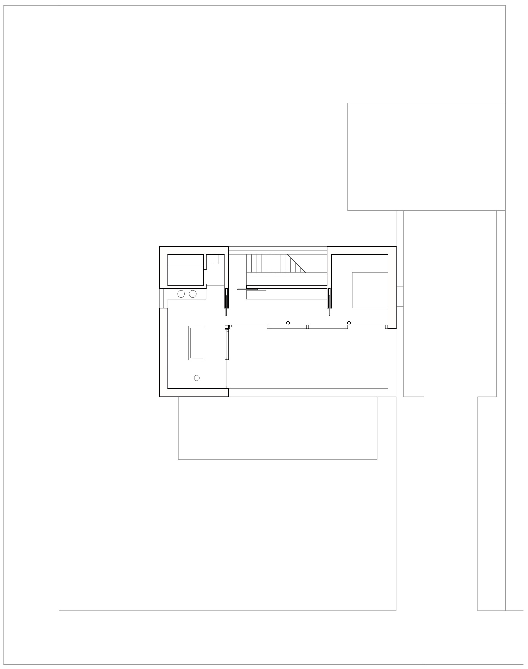
Das DG enthält die privaten Räume: eine zentrale Ankleide, seitlich davon das Schlafzimmer und ein großzügiges Bad mit separatem WC und einer Wäschekammer.
Der Baukörper des Staffelgeschosses bildet dabei einen Winkel, der die Dachterrasse räumlich fasst und dem Baukörper seine prägende Gestalt verleiht.